2211 Wohnungsbau München Freiham WA 19

München, 6-9

Bauherr: GEWOFAG Wohnen GmbH, München
Entwurfsverfasser: Maier Neuberger Architekten GmbH; LAUX Architekten
Baumanagement: Maier Neuberger Baumanagement
Landschaftsplanung: grabner huber lipp Landschaftsarchitekten, Freising
Tragwerksplanung: ibdrm GmbH, Regensburg
Technische Anlagen HLS: Ingenieurbüro feil + semmelmann GbR, Regensburg
Technische Anlagen ELT: heitzer ingenieur GmbH, Regensburg

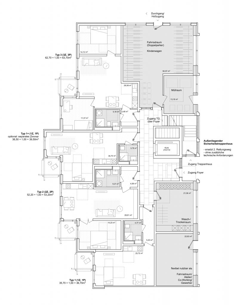
Auf dem Baufeld WA19 dürfen wir ein weiteres Wohnungsbauprojekt in Freiham realisieren. Gegenstand der Baumaßnahme ist die Errichtung einer Wohnanlage in Holz-Hybridbauweise mit insgesamt 140 Wohneinheiten, eines Flexi-Heimes mit 35 Wohneinheiten, 4 Atelierräumen, einer KITA und einer gemeinsamen Tiefgarage. Der Neubau ist mit Untergeschoss bzw. Tiefgarage, Erdgeschoss und fünf Obergeschossen geplant. Mit dem Bauvorhaben wird nahezu das gesamte Grundstück bebaut. Die tragende Struktur des gesamten Gebäudes, bestehend aus Wänden und Geschossdecken, wird als Massivbau in Stahlbetonbauweise errichtet. Nichttragende Wände werden als Trockenbau- Montagewände erstellt. Die Schachtwände der Treppenhäuser werden gemauert. Alle Gebäudeteile werden mit Flachdach ausgeführt und sind überwiegend als extensiv begrüntes Warmdach mit intensiv begrünten Teilflächen geplant. Die Außenwand der Fassade wird nichttragend in Holzbauweise als gedämmte Fassadenkonstruktion ausgeführt und erhält zusätzlich eine hinterlüftete Fassadenverkleidung.